RU:Relation:enforcement
![]() |
| Описание |
|---|
| Устройства измеряющие и фиксирующие нарушения ПДД и их зона покрытия |
| Группа: ограничения |
| Участники |
|
|
| Статус: одобрено |
| Инструменты |
|
Это отношение обозначает различные типы устройств, которые измеряют и фиксируют нарушения ПДД, такие как:
- Стационарный радар скорости
- Камера фиксирующая проезд на красный свет светофора.
- Фиксирующая дистанцию между транспортными средствами
- Проверка массы автомоблия (для тяжелых транспортных средств)
- Обычные места "засады" сотрудников ГИБД (радар, проверка документов, и др)
Эти устройства принадлежат к одному классу объектов и должны использовать одну схему обозначения с различными значениями. Иногда требуется сочетание значений, если устройство выполняет более одной функции (например, радар скорости и фиксация проезда на красный свет в одном устройстве).
Где обозначать?
Везде, где законодательство страны не запрещает обозначать устройства контроля скорости. Если предоставление, отображение или предупреждение об устройствах контроля в стране запрещено в программном обеспечение, то вы можете добавить информацию в базу - программное обеспечение обязательно следовать закону. Поэтому, в программе навигации анализ устройств контроля скорости должен быть реализован как плагин или отключаемая функция.
Теги
Устройства контроля соблюдения ПДД. Это не место, куда бы вы хотели пойти и, следовательно, не amenity.
Создавайте отношение для каждого устройства, так как они могут следить за разными направлениями и параметрами.
| Ключ | Значение | Пример | Пояснение |
|---|---|---|---|
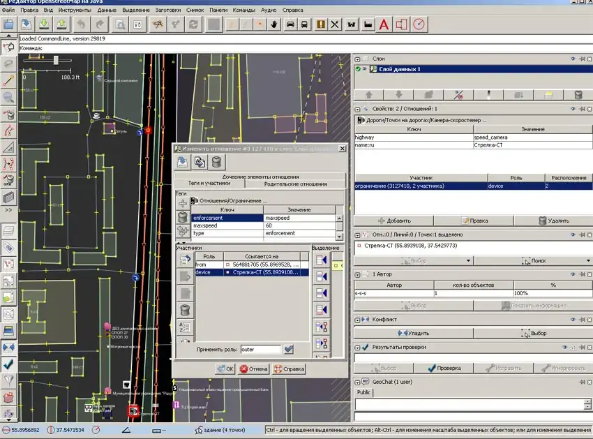
| type | enforcement | enforcement | Тип отношения. |
| enforcement | maxheight / maxweight / maxspeed / mindistance / traffic_signals / check / access / road_marking | maxheight | Какие нарушения контролирует камера: максимальная высота / максимальный вес / максимальная скорость / минимальная дистанция / светофоры / посты или пункты контроля / доступ (например, на выделенную полосу для общественного транспорта) / контроль соблюдения разметки. |
| maxheight | <Число> указать единицы измерения, если не в метрах | 4 | Максимальная высота (Указывать только при enforcement=maxheight) |
| maxweight | <Число> указать единицы измерения, если не в тоннах | 16 | Максимальный вес (Указывать только при enforcement=maxweight) |
| maxspeed | <Число> указать единицы измерения, если не в км/ч | 60 | Максимальная скорость (Указывать только при enforcement=maxspeed) |
| maxwidth | <Число> указать единицы измерения, если не в метрах | 4 | Максимальная ширина (Указывать только при enforcement=maxwidth) |
| mindistance | <Число> указать единицы измерения, если не в метрах | 80 | Минимальная дистанция между автомобилей (Указывать только при enforcement=mindistance) |
Участники
Примеры
Примеры есть на странице предложения
Скрин из редактора
